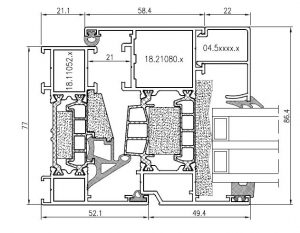
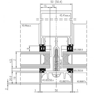
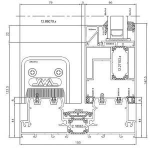
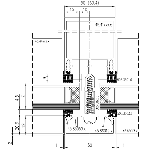
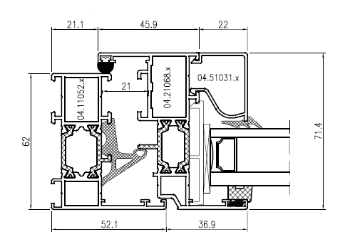
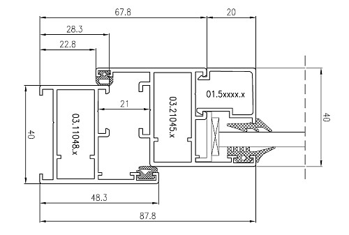
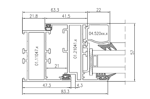
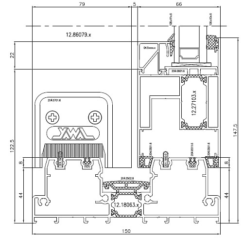
W zakresie oferowanych przez nas usług, znajdują się produkcja i montaż ślusarki aluminiowej, wykonanej na bazie systemowych profili aluminiowych takich jak YAWAL, ALUPROF i COPAL
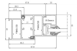
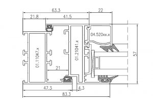
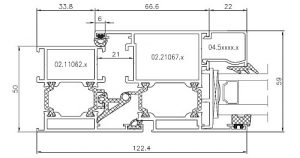
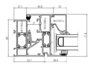
YAWAL – to szeroka oferta systemów profili aluminiowych o dużych możliwościach techniczno – architektonicznych
Wyróżniamy systemy
zimne
ciepłe
fasadowe
okna podnoszono przesuwne
systemy specjalne









